Shibuya Nishishinjuku-Gochome Apartment 201100 Shibuya Nishishinjuku-Gochome Apartment 201101 Shibuya Nishishinjuku-Gochome Apartment 201102 Shibuya Nishishinjuku-Gochome Apartment 201103 Shibuya Nishishinjuku-Gochome Apartment 201104
1/10
距离大江户线西新宿五丁目站步行仅需5分钟!在市中心享受时尚的单身生活。

Shibuya Nishishinjuku-Gochome Apartment


月租
¥87,000

位置 : 本町3丁目 涩谷区 東京
物业类型 : 公寓
運輸

都营大江户线 西新宿5丁目駅 步行 5 分钟

东京地铁丸之内线 中野新桥駅 步行 12 分钟

东京地铁丸之内线 中野坂上駅 步行 13 分钟

概述 Shibuya Nishishinjuku-Gochome Apartment

Lafitte II 交通便利,可轻松前往东京市中心,距离大江户线西新宿五丁目站仅 5 分钟步行路程。这套位于涩谷区本町的单身人士租赁公寓兼具便利与舒适。公寓采用实用的“K”型户型,面积达 20.09 平方米。公寓配备齐全的城市燃气、下水道和管道系统,包括独立的浴室和卫生间、加热马桶盖、盥洗室和室内洗衣机空间。浴室烘干机、空调、内置照明和地板,为您打造舒适的生活方式。互联网接入和充足的储物空间,为智能生活提供支持。自动锁、带监控的对讲机和 24 小时安保系统,让独居女性安心无忧。公寓还提供自行车停放处。租金仅为 87,000 日元起,开启您在市中心的新生活。

房間資訊

房號
樓層數

管理費
保證金
禮金
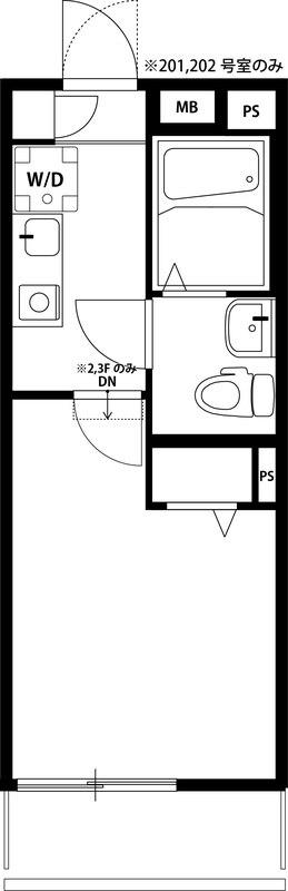
平面圖
寬敞
房間設施
详细内容
202
2
¥87,000
¥4,000
1
1
1K
20.10m²
女性, 男性, 空调, 独立浴室和卫生间, 洗衣机储藏室(室内), 2 个以 ...
详细内容

物業設施


自行车停车场检查
自行车停车场检查

財產規則


Deposits and guarantees


1

Key money


1

Brokerage fee


1

初始成本


退房时房间清洁费:35,200日元\n室内消毒费:16,500日元\nAsuka小额短期保险:19,000日元\n钥匙交换费:24,200日元

入住條件


其他仅限单人

地區資訊

Click to activate map
1
餐厅
2
商店
3
咖啡馆
4
超市
5
便利店
6
医院
7
牙医
8
药房
9
洗衣店
10
银行
11
邮局
12
图书馆
13
市政厅
14
停车场

物業備註


行政人員常駐管理
交易類型仲介
合約類型检查
施工日期2014-03
建築結構Wooden Structure
大樓樓層地上 3 层

物業管理公司


Share Company Ltd.
■ 支援的語言
Service available in English, Korean, Chinese (Simplified), Traditional Chinese
*如果房產清單與目前狀態之間存在差異,則以目前狀態為準。
*下次更新將在上次資訊更新後 14 天內進行。

© 2024 Apartment Tokyo.
關於我們 | 使用條款 | 隱私權政策